VIA DEI NERI 27 (P.ZZA DELLA SIGNORIA)

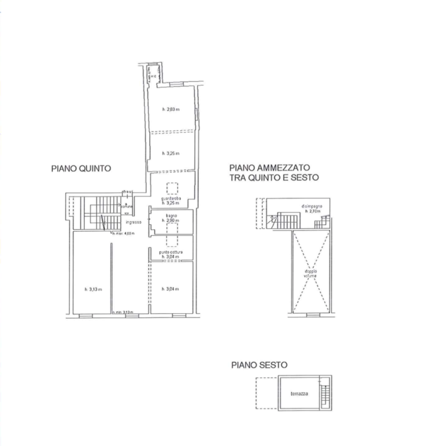
A DUE PASSI DAGLI UFIZZI E DA PIAZZA SIGNORIA DISPONIAMO DI UN AMPIO APPARTAMENTO COMPLETAMENTE DA RISTRUTTURARE DI 150 MQ PIANO ATTICO CON VISTA SU TUTTI MONUMENTI DI FIRENZE , POSTO AL 5-6 PIANO DI UNA PALAZZINA DI VIA DEI NERI.

VENDUTO

COMPLETAMENTE DA RISTRUTTURARE

FOTO VISTA MONUMENTI

SOLUZIONE 1

SOLUZIONE 2

Desiderate comprare un immobile?  Consultate le nostre offerte e contattateci. I nostri consulenti immobiliari vi assisteranno con serietà ed efficienza.

 

Scoprite chi siamo e informatevi sulle nostre offerte e servizi.

PROPONIAMO A TUTTI I CLIENTI CHE NON RIESCANO A  VENDERE LA LORO CASA PERCHÉ È DA RISTRUTTURARE OPPURE DA FRAZIONARE, LA TOTALE ASSISTENZA E RISTRUTTURAZIONE  CON PAGAMENTO IMMEDIATO DELLA CASA                              Per informazioni contattateci.

Contattateci

Se avete domande o desiderate richiedere informazioni contattateci al numero 335 6628812 o al 3299642533 oppure compilate direttamente il modulo online.

i nostri fornitori

Stampa | Mappa del sito
© MP immobiliare (MP costruzioni Real Estate srl) Via Giovanni Pico Della Mirandola 9 50132 Firenze Partita IVA: 07069630486,